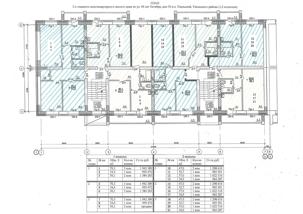
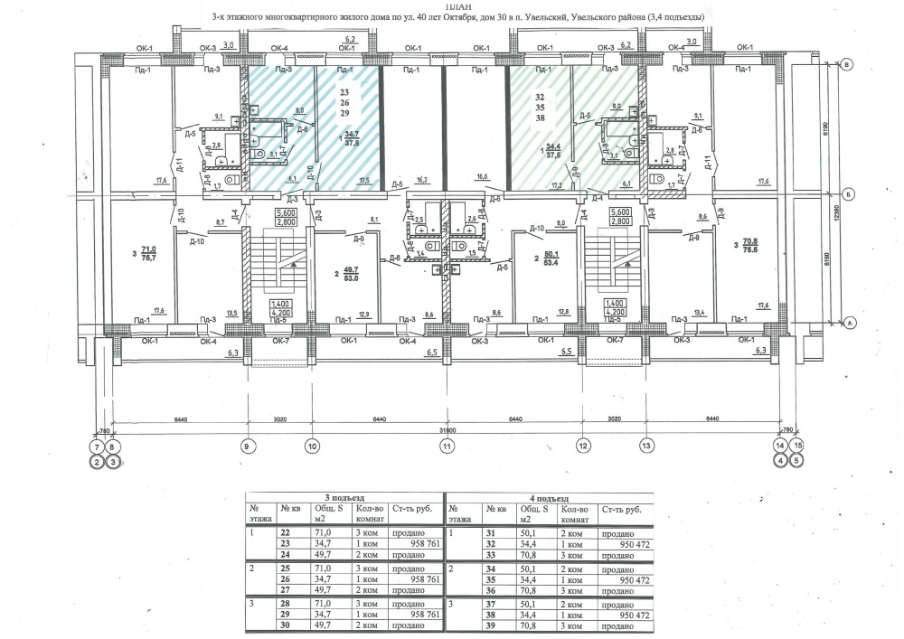
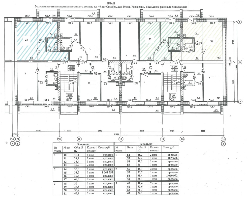
Жилой дом
Адрес: пос. Увельский, ул. 40 лет октября, 30 в
Статус: сдан
Количество квартир: 63
Этажность: 3
Документация
Договор аренды >> скачать
Положительное заключение экспертизы >> скачать
Разрешение на строительство >> скачать
Планы квартир 1-2 подъезд >> скачать
Планы квартир 3-4 подъезд >> скачать
Планы квартир 5-6 подъезд >> скачать









